青墨预告 | 跃龙谷酒店:唤醒建筑与乡村共兴的力量
2024.04.29
图片

图片

图片

△主立面示意图
在大规模城市化进程的影响下,乡村凋敝、荒芜已经是不争的事实,然而近几年来,长期失语的乡村又逐渐被人们发现和重视并成为开发的热土。在这个过程中,建筑扮演着举足轻重的角色。这种“自下而上”发现并利用乡土聚落本身价值的空间赋能方式,即可以唤醒乡村的内生动力,也能为封闭的乡村带来全新的涌动。
位于洛阳的青墨跃龙谷酒店,是青墨建筑设计以乡村振兴为背景而展开的一次建筑实践尝试。我们不希望把乡村变成“情怀的展品”,而是试着在延续传统村落肌理、回应地域文化的同时,以建筑设计的力量推动乡村振兴,让建筑起到“以点带面”的作用,使其在外力撤出之后,依然能够实现乡村经济增长、产业更新、自我升级。


图片


图片

在这个作品中,设计师并不想打造一个野心勃勃的地标式建筑,转而用质朴、本真的叙事方式,娓娓道来一个宁静、独处的度假空间,还原呈现最真实的乡村聚落肌理。
整个场地通过汲取中国传统乡村聚落形态,形成“在地化”的表达形式。立面强调野致感,既不过分张扬,却又很难不引起人们的注意。在材料的选择上也别具一格。就地取材利用夯土涂料、毛石、锈板与青瓦等材料,保留村落岁月斑驳的痕迹、拙朴归园的特色。

图片

图片
△客房区街巷示意图

在设定走入动线的时候,青墨设计尝试了很多转折与过渡。希望用空间的节奏、情绪的起伏、视线的游走,达到移步换景的效果。此外,人字形坡屋顶和单面斜屋顶搭配上有天有地的独立小院,无形之中回应了场地的“时间感”,烟火记忆扑面而来。

生活用水、饮用水同样回归本真,特别使用场地内的泉眼井水。在设计师的感知中,掬一捧清冽甘甜的乡村泉水,所能品咂出来的是井边淳朴、本真的乡土烟火气。


图片
图片

对于“松弛感”氛围的营造,度假空间是极其重要的一部分。酒店适用于不同时间、不同家庭、不同需求的客房,每一处细节都意图把“松弛感”理念贯彻设计始终。

节能、环保的地源热泵空调系统和新风系统,可使室内保持恒定温度;大面块落地玻璃窗可以增加室内采光,也让冬日围炉煮茶多了一份太阳照射的暖意。

图片

△公区示意图

图片

△窑洞客房示意图

独院VILLA可闹可静,适合2-4个家庭组团居住。在开阔的前院可卧听风雨、读书对弈、赏花戏鱼。一层客厅空间足够宽敞又可独立进入四间套卧,先生之间品茶闲谈、太太们瑜伽跳操、孩子们嬉闹玩耍……一幕幕动人场景都可盛放。

复式联排客房适合一家三口/四口居住,上下空间独立互不打扰。入夜时分与孩子一同透过天窗直望天空,漫天繁星是亲子时光最好的故事素材。卸下所有防备陷在柔软的沙发中,闭目享受此刻的宁静,有着都市里难寻的畅快。

图片

△独栋Villa示意图
图片

△一层院子示意图


图片

图片
在室内器物用具的选择上,其美学风格也符合挑剔者的眼光品味,极富文化性、精致度、奢侈感。每张桌椅、每副装饰、每个物件,都是框住日常美学与生动意境的“记忆点”。它是对生活的诗性思考,是可以盛放容纳丰盈生动的感知之所。
图片
△前厅接待区示意图

整体风格注重简化不必要的装饰,呈现相对克制安稳的基调。藤编、木饰面、木地板的材料组合搭配柔软的陈设,给予此处亲昵而雅奢的质感,窗明几净,格调考究。

温润平和,收放有度,这就是跃龙谷酒店的空间叙事性。你甚至不想把她归为酒店、民宿或度假村的任何一种,她更像是一处匍匐于大地上的遗落之境,呈现出一种新的行旅生活表达。

图片

图片

△夜景示意图
图片

△鸟瞰示意图


///


技术图纸

图片

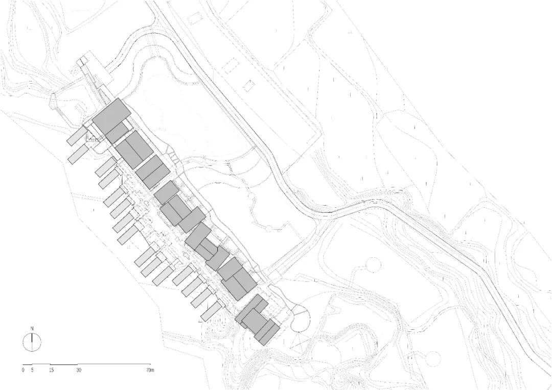
△跃龙谷酒店总图

图片

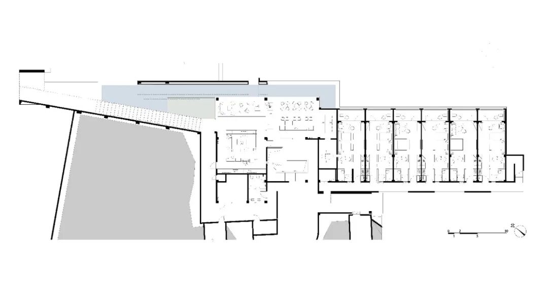
△一层平面图


图片

△窑洞客房区剖立面


图片

△公区与客房区剖立面


///


施工现场

图片


   项目信息
项目地点:洛阳伊滨区诸葛镇杨沟村
建筑面积:4454.46
业主单位:  洛阳青墨跃龙谷旅游发展有限公司
建筑设计:青墨建筑设计
景观设计:李上阳

照明设计:方方

室内设计:青墨建筑设计

施工图设计:青墨建筑设计